ホーム
現地・マンションギャラリー
物件概要
来場予約
資料請求
ホーム
コンセプト
デザイン
間取り・支払い例
設備・仕様
ロケーション
ご購入者様の声
構造・セキュリティ
現地・マンションギャラリー
カラーセレクト
物件概要
フリーダイヤル
PHONE
来場予約
RESERVE
資料請求
REQUEST
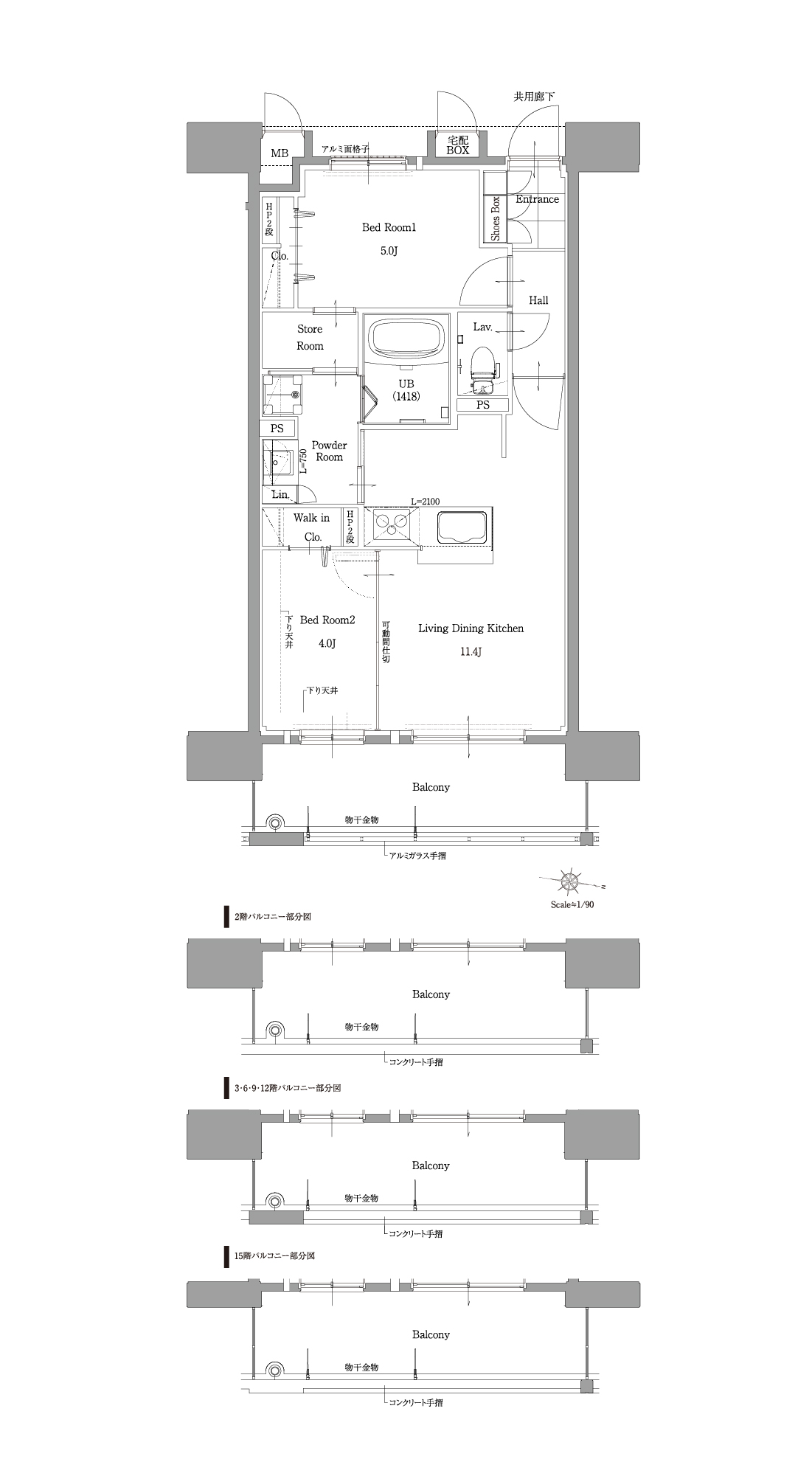
PLAN
間取り
PLAN TOP
Atype|sold out
Btype
Ctype
Dtype
最終2邸
WIC:ウォークインクロゼット
S:納戸
専有面積
宅配BOXを含む
50.92
㎡
(15.40坪)
バルコニー面積
9.11
㎡
(2.75坪)